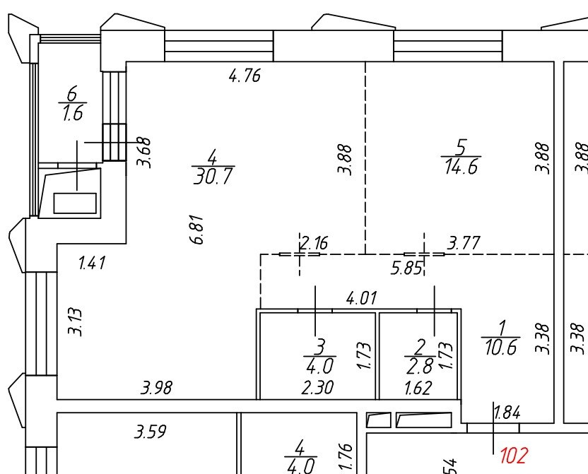
ЖК Now, 64 м
Стильная квартира для девушки с хорошим вкусом
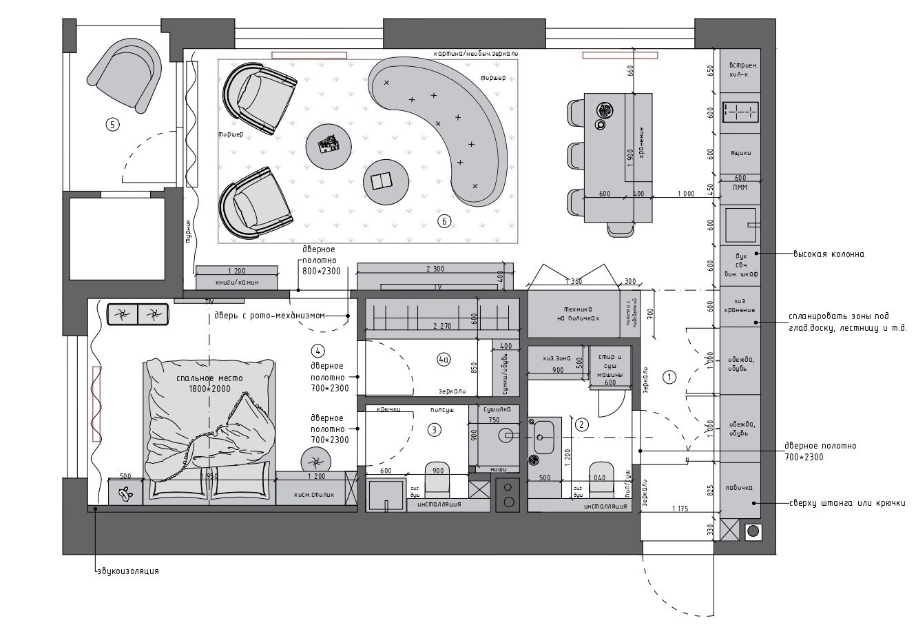
Для этой клиентки и этой квартиры я смогла предложить очень крутую перепланировку. Вместо маленьких комнат и ненужного коридора я спроектировала просторную мастер-спальню со своим санузлом и гардеробной, гостевой санузел с зоной постирочной, а также великолепную кухню-гостиную с 3мя окнами и очень красивой мебелью.
В отделке использованы нейтральные цвета, натуральное дерево, фактурные ткани, а в качестве акцента — золотистые элементы и металлы.







































